
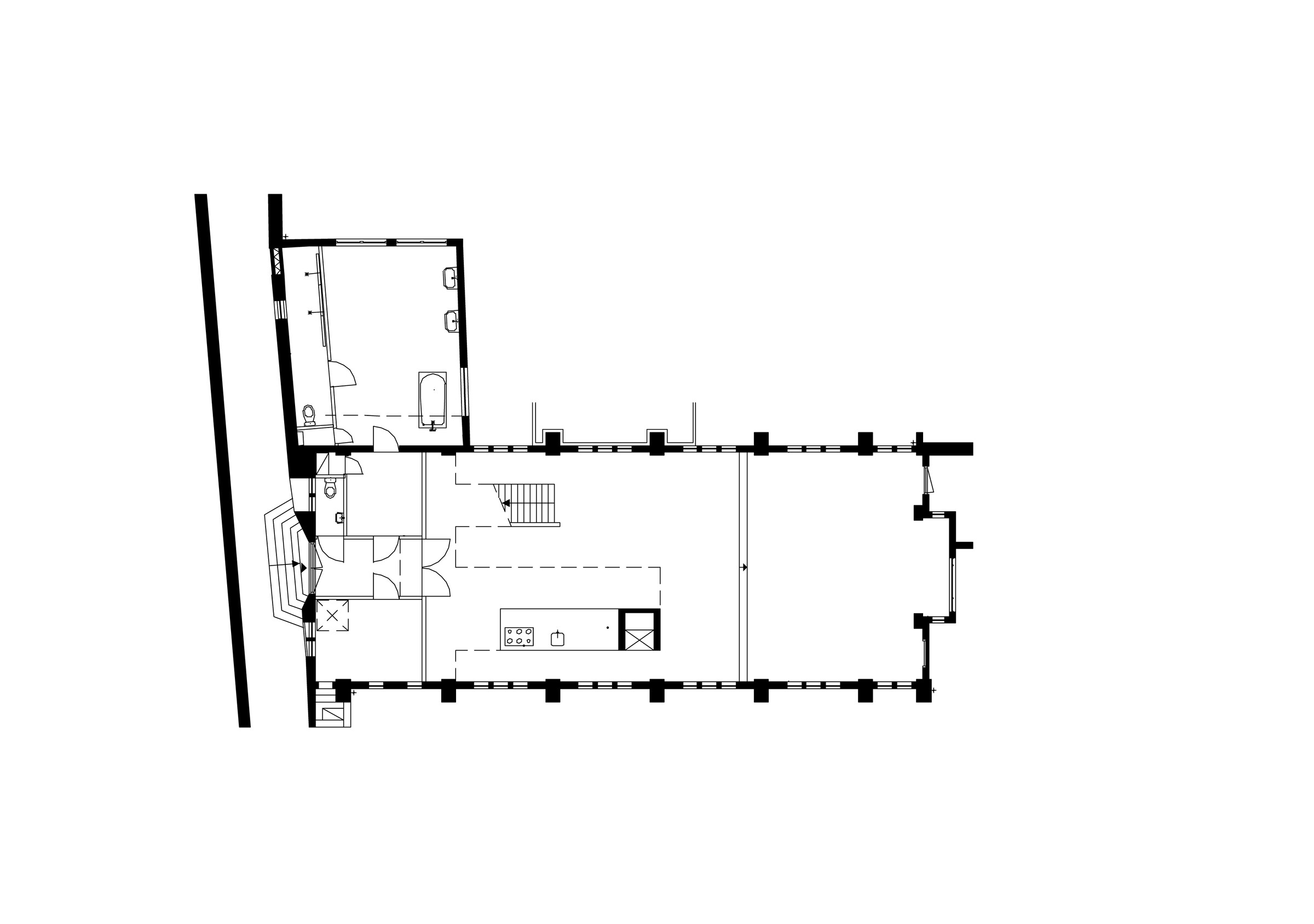
Woonkapel
Een oude Katholieke kapel is herbestemd tot één zeer ruimtelijke woning. Het karakter van de kleine kerk is behouden en waar mogelijk versterkt. Door de toevoeging van extra daklichten valt diffuus wit licht binnen en konden de gebrandschilderde ramen behouden blijven. Door de spierwitte afwerking komen de kleuren van het glas in lood extra tot leven op de vloeren en wanden.
Het balkon met het orgel is uitgebreid in de vorm van een organiserend object, dat in de ruimte is geplaatst. Dit element definieert de verschillende leefruimten, zoals wonen, eten, koken en studeren. Door het hoekige object erg minimalistisch te houden ontstaat er een spannend contrast met de oorspronkelijke, zachte vormentaal van de kapel. Om vanuit binnen zicht te hebben op de stad is een enigszins brutale, abstracte versie van een glas in lood raam achter het altaar gemaakt.
Beelden: Cornbread Works









De verbouwing van een Rotterdamse ‘kluswoning’ is ontaard in een architectonisch schouwspel, waarin wordt geëxperimenteerd met tijd en ruimte. De 100 jaar oude gevel, van een woning in gesloten bouwblok, is volledig geschilderd in een glimmende zwarte olie. Zowel het metselwerk, de kozijnen als de “ ramen” van de bestaande voorgevel zijn in zijn geheel zwart geschilderd. Hierdoor ontstaat er als het ware een “schaduw” van de oorspronkelijke gevel. Deze schaduw is opgevat als een basislaag waarin op nieuwe plaatsen strakke RVS insnedes gemaakt zijn ten behoeve van raamopeningen.
De plaats van deze insnedes is afgestemd op de behoefte vanuit de nieuwe indeling van de woning. Hierdoor ontstaat er een relatie tussen de oorspronkelijke voorgevel en de nieuwe invulling van de woning. De nieuwe invulling wordt ook aan de buitenzijde zichtbaar.
In de zijgevel zijn drie nieuwe raamopeningen gemaakt zodat er ook licht vanuit het zuiden de woning binnenvalt. Omdat deze gevel geen onderdeel uitmaakt van de straatgevels van het gesloten bouwblok is hier gekozen voor een afwijkend materiaalgebruik in de vorm van kunstgras.
De bestaande achtergevel met drie veranda’s is gerestaureerd met behoud  van de oorspronkelijke details.
Rotterdam Zuid herbergt met dit nieuwe klushuis een zwarte parel………



Meer Transformaties
- 
				Tijdelijke Huisvesting Tweede Kamerlocatie:Den Haagcategorie:Transformaties, Interieur, Utiliteitm2:80.000opdrachtgever:RijksvastgoedbedrijfTeam:Strukton Worksphereprogramma:publieke entree, plenaire zaal, commissiezalen, kantoren, restaurants en horecaperiode:2017 - 2021
- 
				Stadsbad Heerlenlocatie:Heerlencategorie:Transformaties, Utiliteit, Interieurm2:1.270opdrachtgever:Gemeente HeerlenTeam:MVRDV, IMd, Nelissen, SkaaLprogramma:Openbaar zwembadperiode:2025 - heden
- 
				Watertoren Utrechtlocatie:Utrechtcategorie:Transformaties, Particulier, Interieurm2:920opdrachtgever:ParticulierTeam:R&R Bouw, Neveschips, IMd, FMax-Isaac, DGMRprogramma:exclusief woonhuis, 3 appartementen, commerciële ruimteperiode:2012 - 2022
- 
				De Vasimlocatie:Nijmegencategorie:Transformaties, Utiliteitm2:12.000opdrachtgever:LingottoTeam:KlokGroep, ZUS [Zones Urbaines Sensibles], Croesprogramma:ruimte voor creatieve bedrijven, cultuur, sport, evenementen en horecaperiode:2021 - 2023
- 
				Gemeentehuis Renswoudelocatie:Renswoudecategorie:Transformaties, Interieur, Utiliteitm2:1.060opdrachtgever:Gemeente RenswoudeTeam:Van Vliet Bouwmanagement, M3E, IBT, Gemeente Renswoude, Bouwbedrijf Osnabrugge, IRP Bouwadviesprogramma:Raadhuis, kantorenperiode:2020 - 2023
- 
				Cobercofabriek Arnhemlocatie:Arnhemcategorie:Transformaties, Interieur, Utiliteit, Gebiedsontwikkelingm2:16.000opdrachtgever:BPD OntwikkelingTeam:Delva landscape, Orange architects, Studiospaciousprogramma:66 appartementen, 30 ggbperiode:2022 - heden
- 
				KPN-hof Apeldoornlocatie:Apeldoorncategorie:Woningbouw, Transformaties, Gebiedsontwikkelingopdrachtgever:ExploriusTeam:Flux Landscape, Gemeente Apeldoornprogramma:95 woningen, horeca, werken, commerciële ruimteperiode:2023 - heden
- 
				Onderdelenloodslocatie:Utrechtcategorie:Transformaties, Utiliteit, Interieurm2:1.800opdrachtgever:Zecc Vastgoed BVTeam:R&R Bouwprogramma:5 kantoorstudio'speriode:2021 - 2024
- 
				Duvelhof Tilburglocatie:Tilburgcategorie:Woningbouw, Transformaties, Utiliteit, Gebiedsontwikkelingm2:8.100Team:Studio REDD, Nico de bont, Hazenberg Bouw, De Bouwecoloogprogramma:creatieve ateliers, 20 appartementen, commerciële ruimte, ondergronds parkerenperiode:2020 - heden
- 
				Stolpboerderij Bergenlocatie:Bergencategorie:Transformaties, Particulier, Interieuropdrachtgever:ParticulierTeam:BOOM landscapeprogramma:Hedendaags familiehuisperiode:2022 - heden
- 
				Interieur Bibliotheek Neudelocatie:Utrechtcategorie:Transformaties, Utiliteit, Interieurm2:9.000opdrachtgever:De Bibliotheek UtrechtTeam:Rijnboutt, Jurriens B.V. maar! bouwmanagement, Coors, Keijsers, Gispenprogramma:bibliotheek, kantoren, horeca, vergaderzalen, auditoriumperiode:2015 - 2020
- 
				Steel Craft Houselocatie:Utrechtcategorie:Transformaties, Particulierm2:120opdrachtgever:R. Manders en H. CaspersenTeam:staalstudio, vrienden, vof de Bouwmaatprogramma:woningperiode:2011 - 2020
- 
				Visie De Loodsen - Spoorzone Zwollelocatie:Spoorzone Zwollecategorie:Transformaties, Gebiedsontwikkelingm2:78.000opdrachtgever:NS / Museum de Fundatie / ArtEZ / Cibap / Gemeente ZwolleTeam:BGSVprogramma:museum, onderwijs, creatieve en culturele bedrijvigheid, innovatie district, wonen, kantoor, culturele voorzieningen, horeca, exposities en tentoonstellingenperiode:2021-2022
- 
				Woonkerk XLlocatie:Utrechtcategorie:Transformaties, Particulier, Interieurm2:475opdrachtgever:ParticulierTeam:Rietveld interieurbouwprogramma:Transformatie kerk tot ruimtelijk woonhuisperiode:2007-2009
- 
				Ruimzicht Den Haaglocatie:Den Haagcategorie:Woningbouw, Transformatiesopdrachtgever:Staedion/ Heijmans Vastgoedprogramma:81 sociale huurwoningen, commerciële plintperiode:2020 - heden
- 
				GAK middendeellocatie:Amsterdamcategorie:Transformaties, Interieur, Utiliteitm2:10.000opdrachtgever:SteenvastgoedTeam:WDJArchitecten, ABT, DPA, Huygenprogramma:120 hotelkamers, loungeperiode:2015 - 2020
- 
				Buitenplaats Provincie Utrechtcategorie:Transformaties, Particulier, Interieurm2:950opdrachtgever:ParticulierTeam:Van Rossum, Nijeboer - Hage, Remy Meijersprogramma:woonhuis, kantoorperiode:2016 - 2020
- 
				Transformatie CAB Cartesiusdriehoeklocatie:Utrechtcategorie:Transformaties, Utiliteit, Gebiedsontwikkelingopdrachtgever:BPD / LingottoTeam:ZUS, CCO, Arupprogramma:leisure, maak industrie, appartementenperiode:2017 - 2018
- 
				Werkspoorfabrieklocatie:Utrechtcategorie:Transformatiesm2:9.200opdrachtgever:Overvecht VastgoedTeam:Van Kessel Bouw, Respace, Kijk op Bouwen, Baas B.V, H2O Installatietechniek, Van Roekel & van Roekel, Wunderhund, Flux Landscapeprogramma:creatieve bedrijven, maakindustrie, bierbrouwerijperiode:2016 - 2019
- 
				Herbestemming Wagenmakerijlocatie:Utrechtcategorie:Transformatiesm2:1.200opdrachtgever:NS-StationsTeam:Except, Aversch, Niemanprogramma:kantoren, multifunctioneel gebouwperiode:2015 - 2017
- 
				Studentenhuisvestinglocatie:Utrechtcategorie:Woningbouw, TransformatiesTeam:Versteeg Utrechtprogramma:studentenhuisvestingperiode:2014 - 2016
- 
				Spoorhuislocatie:Santpoortcategorie:Transformaties, Particulier, Interieurm2:100opdrachtgever:ParticulierTeam:STUDIO JEROEN VAN ZWETSELAARperiode:2009 - 2012
- 
				Woonboerderijlocatie:provincie Utrechtcategorie:Transformaties, Particulier, Interieurm2:950opdrachtgever:ParticulierTeam:STUDIO JEROEN VAN ZWETSELAAR, Van Rhenen, BOOMprogramma:woonhuis, kantoor, atelierperiode:2013 - 2016
- 
				Woonkapellocatie:Utrechtcategorie:Transformaties, Particulier, Interieurm2:250opdrachtgever:ParticulierTeam:Thesis Bouw Nieuwegeinprogramma:woonhuisperiode:2006 - 2007
- 
				Sidewall(k)locatie:Utrechtcategorie:Transformaties, Utiliteitopdrachtgever:Gemeente UtrechtTeam:Bouwbedrijf van den Engelprogramma:Gevel van hergebruikte stoeptegelsperiode:2012 - 2014
- 
				Drents Archief 3.0locatie:Assencategorie:Transformaties, Interieur, Utiliteitm2:3.300opdrachtgever:Rijksvastgoedbedrijf en Drents ArchiefTeam:Brands Bouwgroep B.V.programma:Openbaar archiefperiode:2010 - 2012
- 
				Watertorenlocatie:Den Boschcategorie:Transformatiesopdrachtgever:BOEiTeam:BAM Utiliteitsbouw, Schakel & Schraleprogramma:Kantoren & horecaperiode:2011 - 2014
- 
				Foodhall MOUT met Brouwerijlocatie:Hilversumcategorie:Transformaties, Utiliteitm2:1.000opdrachtgever:Teus Kroonprogramma:Foodhall, Gooische bierbrouwerijperiode:2016 - 2017
- 
				Uitkijktoren Sint Janskloosterlocatie:Sint Janskloostercategorie:Transformaties, Interieur, Utiliteitopdrachtgever:BOEi / Vitens en Natuurmonumentenprogramma:Uitkijktorenperiode:2007 - 2014
- 
				Polygonale Loodslocatie:Tilburgcategorie:Transformaties, Utiliteitm2:1.500opdrachtgever:BOEiTeam:EVE, BAM, Hugo Interieurvormgevingprogramma:restaurant, evenementenruimteperiode:2015 - 2017
- 
				Duurzaam Monumentlocatie:Driebergencategorie:Transformaties, Particulieropdrachtgever:Particulier / Stichting Duurzaam Renoveren van Historische Gebouwenprogramma:woonhuisperiode:2009 - 2010
- 
				Woonwatertorenlocatie:Soestcategorie:Transformaties, Particulier, Interieurm2:280opdrachtgever:ParticulierTeam:Plegt-Vos. Middelkoopprogramma:woonhuisperiode:2002 - 2004
- 
				Zwarte parellocatie:Rotterdamcategorie:Transformaties, Particulieropdrachtgever:ParticulierTeam:Studio Rolf.frprogramma:woning en atelierperiode:2008 - 2012
Meer Particulier
- 
				Watertoren Utrechtlocatie:Utrechtcategorie:Transformaties, Particulier, Interieurm2:920opdrachtgever:ParticulierTeam:R&R Bouw, Neveschips, IMd, FMax-Isaac, DGMRprogramma:exclusief woonhuis, 3 appartementen, commerciële ruimteperiode:2012 - 2022
- 
				Stolpboerderij Bergenlocatie:Bergencategorie:Transformaties, Particulier, Interieuropdrachtgever:ParticulierTeam:BOOM landscapeprogramma:Hedendaags familiehuisperiode:2022 - heden
- 
				Steel Craft Houselocatie:Utrechtcategorie:Transformaties, Particulierm2:120opdrachtgever:R. Manders en H. CaspersenTeam:staalstudio, vrienden, vof de Bouwmaatprogramma:woningperiode:2011 - 2020
- 
				Woonkerk XLlocatie:Utrechtcategorie:Transformaties, Particulier, Interieurm2:475opdrachtgever:ParticulierTeam:Rietveld interieurbouwprogramma:Transformatie kerk tot ruimtelijk woonhuisperiode:2007-2009
- 
				Buitenplaats Provincie Utrechtcategorie:Transformaties, Particulier, Interieurm2:950opdrachtgever:ParticulierTeam:Van Rossum, Nijeboer - Hage, Remy Meijersprogramma:woonhuis, kantoorperiode:2016 - 2020
- 
				Recreatiewoninglocatie:provincie Utrechtcategorie:Particulierm2:40opdrachtgever:ParticulierTeam:Roel van Norelperiode:2012 - 2014
- 
				Spoorhuislocatie:Santpoortcategorie:Transformaties, Particulier, Interieurm2:100opdrachtgever:ParticulierTeam:STUDIO JEROEN VAN ZWETSELAARperiode:2009 - 2012
- 
				Woonboerderijlocatie:provincie Utrechtcategorie:Transformaties, Particulier, Interieurm2:950opdrachtgever:ParticulierTeam:STUDIO JEROEN VAN ZWETSELAAR, Van Rhenen, BOOMprogramma:woonhuis, kantoor, atelierperiode:2013 - 2016
- 
				Woonkapellocatie:Utrechtcategorie:Transformaties, Particulier, Interieurm2:250opdrachtgever:ParticulierTeam:Thesis Bouw Nieuwegeinprogramma:woonhuisperiode:2006 - 2007
- 
				Baksteenhuislocatie:Groenekancategorie:Particulieropdrachtgever:ParticulierTeam:Van Rhenenprogramma:Vrijstaande woningperiode:2010 - 2013
- 
				Landschapsvillalocatie:Vriezenveencategorie:Particulieropdrachtgever:ParticulierTeam:Westerhofprogramma:Woonhuisperiode:2005 - 2006
- 
				Duurzaam Monumentlocatie:Driebergencategorie:Transformaties, Particulieropdrachtgever:Particulier / Stichting Duurzaam Renoveren van Historische Gebouwenprogramma:woonhuisperiode:2009 - 2010
- 
				Woonwatertorenlocatie:Soestcategorie:Transformaties, Particulier, Interieurm2:280opdrachtgever:ParticulierTeam:Plegt-Vos. Middelkoopprogramma:woonhuisperiode:2002 - 2004
- 
				Zwarte parellocatie:Rotterdamcategorie:Transformaties, Particulieropdrachtgever:ParticulierTeam:Studio Rolf.frprogramma:woning en atelierperiode:2008 - 2012
- 
				Bosvillalocatie:Soestcategorie:Particulierm2:450opdrachtgever:ParticulierTeam:Van Rhenenprogramma:Villaperiode:2007 - 2009
Meer Interieur
- 
				Tijdelijke Huisvesting Tweede Kamerlocatie:Den Haagcategorie:Transformaties, Interieur, Utiliteitm2:80.000opdrachtgever:RijksvastgoedbedrijfTeam:Strukton Worksphereprogramma:publieke entree, plenaire zaal, commissiezalen, kantoren, restaurants en horecaperiode:2017 - 2021
- 
				Stadsbad Heerlenlocatie:Heerlencategorie:Transformaties, Utiliteit, Interieurm2:1.270opdrachtgever:Gemeente HeerlenTeam:MVRDV, IMd, Nelissen, SkaaLprogramma:Openbaar zwembadperiode:2025 - heden
- 
				Watertoren Utrechtlocatie:Utrechtcategorie:Transformaties, Particulier, Interieurm2:920opdrachtgever:ParticulierTeam:R&R Bouw, Neveschips, IMd, FMax-Isaac, DGMRprogramma:exclusief woonhuis, 3 appartementen, commerciële ruimteperiode:2012 - 2022
- 
				Nobelkwartier De Biltlocatie:De Biltcategorie:Woningbouw, Interieur, Utiliteitm2:6.400opdrachtgever:Gemeente De Bilt / H.F. Witte Centrum / WoongroenTeam:IBT, DWA, M3E, Anyverse, Odin Wenting bouwadviesprogramma:sporthal, bijeenkomstcentrum met horeca, 10 appartementen, 8 ggbperiode:2019 - heden
- 
				Gemeentehuis Renswoudelocatie:Renswoudecategorie:Transformaties, Interieur, Utiliteitm2:1.060opdrachtgever:Gemeente RenswoudeTeam:Van Vliet Bouwmanagement, M3E, IBT, Gemeente Renswoude, Bouwbedrijf Osnabrugge, IRP Bouwadviesprogramma:Raadhuis, kantorenperiode:2020 - 2023
- 
				Cobercofabriek Arnhemlocatie:Arnhemcategorie:Transformaties, Interieur, Utiliteit, Gebiedsontwikkelingm2:16.000opdrachtgever:BPD OntwikkelingTeam:Delva landscape, Orange architects, Studiospaciousprogramma:66 appartementen, 30 ggbperiode:2022 - heden
- 
				Onderdelenloodslocatie:Utrechtcategorie:Transformaties, Utiliteit, Interieurm2:1.800opdrachtgever:Zecc Vastgoed BVTeam:R&R Bouwprogramma:5 kantoorstudio'speriode:2021 - 2024
- 
				Stolpboerderij Bergenlocatie:Bergencategorie:Transformaties, Particulier, Interieuropdrachtgever:ParticulierTeam:BOOM landscapeprogramma:Hedendaags familiehuisperiode:2022 - heden
- 
				Interieur Bibliotheek Neudelocatie:Utrechtcategorie:Transformaties, Utiliteit, Interieurm2:9.000opdrachtgever:De Bibliotheek UtrechtTeam:Rijnboutt, Jurriens B.V. maar! bouwmanagement, Coors, Keijsers, Gispenprogramma:bibliotheek, kantoren, horeca, vergaderzalen, auditoriumperiode:2015 - 2020
- 
				Woonkerk XLlocatie:Utrechtcategorie:Transformaties, Particulier, Interieurm2:475opdrachtgever:ParticulierTeam:Rietveld interieurbouwprogramma:Transformatie kerk tot ruimtelijk woonhuisperiode:2007-2009
- 
				GAK middendeellocatie:Amsterdamcategorie:Transformaties, Interieur, Utiliteitm2:10.000opdrachtgever:SteenvastgoedTeam:WDJArchitecten, ABT, DPA, Huygenprogramma:120 hotelkamers, loungeperiode:2015 - 2020
- 
				Buitenplaats Provincie Utrechtcategorie:Transformaties, Particulier, Interieurm2:950opdrachtgever:ParticulierTeam:Van Rossum, Nijeboer - Hage, Remy Meijersprogramma:woonhuis, kantoorperiode:2016 - 2020
- 
				Spoorhuislocatie:Santpoortcategorie:Transformaties, Particulier, Interieurm2:100opdrachtgever:ParticulierTeam:STUDIO JEROEN VAN ZWETSELAARperiode:2009 - 2012
- 
				Woonboerderijlocatie:provincie Utrechtcategorie:Transformaties, Particulier, Interieurm2:950opdrachtgever:ParticulierTeam:STUDIO JEROEN VAN ZWETSELAAR, Van Rhenen, BOOMprogramma:woonhuis, kantoor, atelierperiode:2013 - 2016
- 
				Woonkapellocatie:Utrechtcategorie:Transformaties, Particulier, Interieurm2:250opdrachtgever:ParticulierTeam:Thesis Bouw Nieuwegeinprogramma:woonhuisperiode:2006 - 2007
- 
				Drents Archief 3.0locatie:Assencategorie:Transformaties, Interieur, Utiliteitm2:3.300opdrachtgever:Rijksvastgoedbedrijf en Drents ArchiefTeam:Brands Bouwgroep B.V.programma:Openbaar archiefperiode:2010 - 2012
- 
				Huisvesting KRO-NCRVlocatie:Hilversumcategorie:Interieurm2:6.000opdrachtgever:KRO-NCRVTeam:CBREprogramma:kantoren, vergaderruimtenperiode:2014 - 2015
- 
				Uitkijktoren Sint Janskloosterlocatie:Sint Janskloostercategorie:Transformaties, Interieur, Utiliteitopdrachtgever:BOEi / Vitens en Natuurmonumentenprogramma:Uitkijktorenperiode:2007 - 2014
- 
				Vereniging Eigen Huislocatie:Amersfoortcategorie:Interieurm2:5.500opdrachtgever:Vereniging Eigen HuisTeam:Bouwbedrijf Heldoornprogramma:kantorenperiode:2014 - 2016
- 
				Woonwatertorenlocatie:Soestcategorie:Transformaties, Particulier, Interieurm2:280opdrachtgever:ParticulierTeam:Plegt-Vos. Middelkoopprogramma:woonhuisperiode:2002 - 2004
- 
				Heldergroenlocatie:Haarlemcategorie:Interieurm2:150programma:kantoorhuisvestingperiode:2009













































