
Woonkerk XL
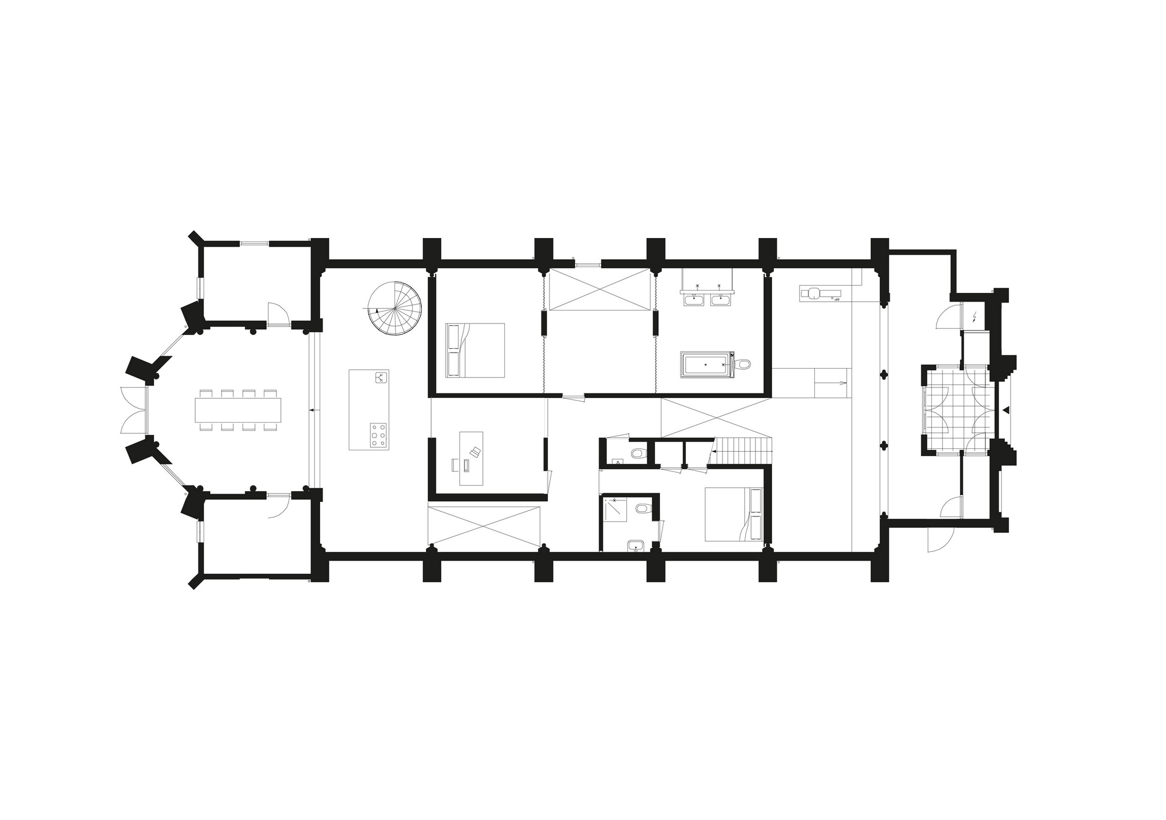
De Oud Katholieke St. Jakobuskerk is getransformeerd tot een riante woning. De kerk staat onopvallend in een straatgevel aan de Bemuurde Weerd in de Utrechtse binnenstad. Hier gaat de Oudegracht langzaam over in de Vecht. Al sinds 1991 zijn in de kerk geen diensten meer en in de periode tot 2007 is de kerk gebruikt als showroom voor antieke meubelen. Ook werd de kerk verhuurd als vergaderruimte of gebruikt voor kleine concerten.
Voor deze functies werd in de jaren ’90 een grote tussenvloer gemaakt, die de ruimtelijkheid van de kerk heeft doorbroken. De aanwezigheid van deze tussenvloer vormde bij aanvang een belangrijk uitgangspunt voor het ontwerp. De tussenvloer is ingrijpend aangepast om de ruimtelijke kwaliteiten van de kerk te verbeteren of te herstellen. Met het verwijderen van gedeelten van de tussenvloer zijn interessante zichtlijnen benadrukt en kan het licht beter doordringen tot de begane grond. De verkeersruimte meandert dwars door het volume en verbindt de open voorzijde met het achterste gedeelte van de kerk waar vroeger het altaar stond. Soms is de ervaring van de monumentale kerk dominant en op andere momenten overheerst de nieuwe ‘look’ van de woonkerk. Verder is de kerk aan de buitenzijde volledig intact gelaten en komt daglicht binnen via de oorspronkelijke glas-in-loodramen.


![]() |











Meer Transformaties
-
Tijdelijke Huisvesting Tweede Kamer
locatie:Den Haagcategorie:Transformaties, Interieur, Utiliteitm2:80.000opdrachtgever:RijksvastgoedbedrijfTeam:Strukton Worksphereprogramma:publieke entree, plenaire zaal, commissiezalen, kantoren, restaurants en horecaperiode:2017 - 2021 -
Stadsbad Heerlen
locatie:Heerlencategorie:Transformaties, Utiliteit, Interieurm2:1.270opdrachtgever:Gemeente HeerlenTeam:MVRDV, IMd, Nelissen, SkaaLprogramma:Openbaar zwembadperiode:2025 - heden -
Watertoren Utrecht
locatie:Utrechtcategorie:Transformaties, Particulier, Interieurm2:920opdrachtgever:ParticulierTeam:R&R Bouw, Neveschips, IMd, FMax-Isaac, DGMRprogramma:exclusief woonhuis, 3 appartementen, commerciële ruimteperiode:2012 - 2022 -
De Vasim
locatie:Nijmegencategorie:Transformaties, Utiliteitm2:12.000opdrachtgever:LingottoTeam:KlokGroep, ZUS [Zones Urbaines Sensibles], Croesprogramma:ruimte voor creatieve bedrijven, cultuur, sport, evenementen en horecaperiode:2021 - 2023 -
Gemeentehuis Renswoude
locatie:Renswoudecategorie:Transformaties, Interieur, Utiliteitm2:1.060opdrachtgever:Gemeente RenswoudeTeam:Van Vliet Bouwmanagement, M3E, IBT, Gemeente Renswoude, Bouwbedrijf Osnabrugge, IRP Bouwadviesprogramma:Raadhuis, kantorenperiode:2020 - 2023 -
Cobercofabriek Arnhem
locatie:Arnhemcategorie:Transformaties, Interieur, Utiliteit, Gebiedsontwikkelingm2:16.000opdrachtgever:BPD OntwikkelingTeam:Delva landscape, Orange architects, Studiospaciousprogramma:66 appartementen, 30 ggbperiode:2022 - heden -
KPN-hof Apeldoorn
locatie:Apeldoorncategorie:Woningbouw, Transformaties, Gebiedsontwikkelingopdrachtgever:ExploriusTeam:Flux Landscape, Gemeente Apeldoornprogramma:95 woningen, horeca, werken, commerciële ruimteperiode:2023 - heden -
Onderdelenloods
locatie:Utrechtcategorie:Transformaties, Utiliteit, Interieurm2:1.800opdrachtgever:Zecc Vastgoed BVTeam:R&R Bouwprogramma:5 kantoorstudio'speriode:2021 - 2024 -
Duvelhof Tilburg
locatie:Tilburgcategorie:Woningbouw, Transformaties, Utiliteit, Gebiedsontwikkelingm2:8.100Team:Studio REDD, Nico de bont, Hazenberg Bouw, De Bouwecoloogprogramma:creatieve ateliers, 20 appartementen, commerciële ruimte, ondergronds parkerenperiode:2020 - heden -
Stolpboerderij Bergen
locatie:Bergencategorie:Transformaties, Particulier, Interieuropdrachtgever:ParticulierTeam:BOOM landscapeprogramma:Hedendaags familiehuisperiode:2022 - heden -
Interieur Bibliotheek Neude
locatie:Utrechtcategorie:Transformaties, Utiliteit, Interieurm2:9.000opdrachtgever:De Bibliotheek UtrechtTeam:Rijnboutt, Jurriens B.V. maar! bouwmanagement, Coors, Keijsers, Gispenprogramma:bibliotheek, kantoren, horeca, vergaderzalen, auditoriumperiode:2015 - 2020 -
Steel Craft House
locatie:Utrechtcategorie:Transformaties, Particulierm2:120opdrachtgever:R. Manders en H. CaspersenTeam:staalstudio, vrienden, vof de Bouwmaatprogramma:woningperiode:2011 - 2020 -
Visie De Loodsen - Spoorzone Zwolle
locatie:Spoorzone Zwollecategorie:Transformaties, Gebiedsontwikkelingm2:78.000opdrachtgever:NS / Museum de Fundatie / ArtEZ / Cibap / Gemeente ZwolleTeam:BGSVprogramma:museum, onderwijs, creatieve en culturele bedrijvigheid, innovatie district, wonen, kantoor, culturele voorzieningen, horeca, exposities en tentoonstellingenperiode:2021-2022 -
Woonkerk XL
locatie:Utrechtcategorie:Transformaties, Particulier, Interieurm2:475opdrachtgever:ParticulierTeam:Rietveld interieurbouwprogramma:Transformatie kerk tot ruimtelijk woonhuisperiode:2007-2009 -
Ruimzicht Den Haag
locatie:Den Haagcategorie:Woningbouw, Transformatiesopdrachtgever:Staedion/ Heijmans Vastgoedprogramma:81 sociale huurwoningen, commerciële plintperiode:2020 - heden -
GAK middendeel
locatie:Amsterdamcategorie:Transformaties, Interieur, Utiliteitm2:10.000opdrachtgever:SteenvastgoedTeam:WDJArchitecten, ABT, DPA, Huygenprogramma:120 hotelkamers, loungeperiode:2015 - 2020 -
Buitenplaats Provincie Utrecht
categorie:Transformaties, Particulier, Interieurm2:950opdrachtgever:ParticulierTeam:Van Rossum, Nijeboer - Hage, Remy Meijersprogramma:woonhuis, kantoorperiode:2016 - 2020 -
Transformatie CAB Cartesiusdriehoek
locatie:Utrechtcategorie:Transformaties, Utiliteit, Gebiedsontwikkelingopdrachtgever:BPD / LingottoTeam:ZUS, CCO, Arupprogramma:leisure, maak industrie, appartementenperiode:2017 - 2018 -
Werkspoorfabriek
locatie:Utrechtcategorie:Transformatiesm2:9.200opdrachtgever:Overvecht VastgoedTeam:Van Kessel Bouw, Respace, Kijk op Bouwen, Baas B.V, H2O Installatietechniek, Van Roekel & van Roekel, Wunderhund, Flux Landscapeprogramma:creatieve bedrijven, maakindustrie, bierbrouwerijperiode:2016 - 2019 -
Herbestemming Wagenmakerij
locatie:Utrechtcategorie:Transformatiesm2:1.200opdrachtgever:NS-StationsTeam:Except, Aversch, Niemanprogramma:kantoren, multifunctioneel gebouwperiode:2015 - 2017 -
Studentenhuisvesting
locatie:Utrechtcategorie:Woningbouw, TransformatiesTeam:Versteeg Utrechtprogramma:studentenhuisvestingperiode:2014 - 2016 -
Spoorhuis
locatie:Santpoortcategorie:Transformaties, Particulier, Interieurm2:100opdrachtgever:ParticulierTeam:STUDIO JEROEN VAN ZWETSELAARperiode:2009 - 2012 -
Woonboerderij
locatie:provincie Utrechtcategorie:Transformaties, Particulier, Interieurm2:950opdrachtgever:ParticulierTeam:STUDIO JEROEN VAN ZWETSELAAR, Van Rhenen, BOOMprogramma:woonhuis, kantoor, atelierperiode:2013 - 2016 -
Woonkapel
locatie:Utrechtcategorie:Transformaties, Particulier, Interieurm2:250opdrachtgever:ParticulierTeam:Thesis Bouw Nieuwegeinprogramma:woonhuisperiode:2006 - 2007 -
Sidewall(k)
locatie:Utrechtcategorie:Transformaties, Utiliteitopdrachtgever:Gemeente UtrechtTeam:Bouwbedrijf van den Engelprogramma:Gevel van hergebruikte stoeptegelsperiode:2012 - 2014 -
Drents Archief 3.0
locatie:Assencategorie:Transformaties, Interieur, Utiliteitm2:3.300opdrachtgever:Rijksvastgoedbedrijf en Drents ArchiefTeam:Brands Bouwgroep B.V.programma:Openbaar archiefperiode:2010 - 2012 -
Watertoren
locatie:Den Boschcategorie:Transformatiesopdrachtgever:BOEiTeam:BAM Utiliteitsbouw, Schakel & Schraleprogramma:Kantoren & horecaperiode:2011 - 2014 -
Foodhall MOUT met Brouwerij
locatie:Hilversumcategorie:Transformaties, Utiliteitm2:1.000opdrachtgever:Teus Kroonprogramma:Foodhall, Gooische bierbrouwerijperiode:2016 - 2017 -
Uitkijktoren Sint Jansklooster
locatie:Sint Janskloostercategorie:Transformaties, Interieur, Utiliteitopdrachtgever:BOEi / Vitens en Natuurmonumentenprogramma:Uitkijktorenperiode:2007 - 2014 -
Polygonale Loods
locatie:Tilburgcategorie:Transformaties, Utiliteitm2:1.500opdrachtgever:BOEiTeam:EVE, BAM, Hugo Interieurvormgevingprogramma:restaurant, evenementenruimteperiode:2015 - 2017 -
Duurzaam Monument
locatie:Driebergencategorie:Transformaties, Particulieropdrachtgever:Particulier / Stichting Duurzaam Renoveren van Historische Gebouwenprogramma:woonhuisperiode:2009 - 2010 -
Woonwatertoren
locatie:Soestcategorie:Transformaties, Particulier, Interieurm2:280opdrachtgever:ParticulierTeam:Plegt-Vos. Middelkoopprogramma:woonhuisperiode:2002 - 2004 -
Zwarte parel
locatie:Rotterdamcategorie:Transformaties, Particulieropdrachtgever:ParticulierTeam:Studio Rolf.frprogramma:woning en atelierperiode:2008 - 2012
Meer Particulier
-
Watertoren Utrecht
locatie:Utrechtcategorie:Transformaties, Particulier, Interieurm2:920opdrachtgever:ParticulierTeam:R&R Bouw, Neveschips, IMd, FMax-Isaac, DGMRprogramma:exclusief woonhuis, 3 appartementen, commerciële ruimteperiode:2012 - 2022 -
Stolpboerderij Bergen
locatie:Bergencategorie:Transformaties, Particulier, Interieuropdrachtgever:ParticulierTeam:BOOM landscapeprogramma:Hedendaags familiehuisperiode:2022 - heden -
Steel Craft House
locatie:Utrechtcategorie:Transformaties, Particulierm2:120opdrachtgever:R. Manders en H. CaspersenTeam:staalstudio, vrienden, vof de Bouwmaatprogramma:woningperiode:2011 - 2020 -
Woonkerk XL
locatie:Utrechtcategorie:Transformaties, Particulier, Interieurm2:475opdrachtgever:ParticulierTeam:Rietveld interieurbouwprogramma:Transformatie kerk tot ruimtelijk woonhuisperiode:2007-2009 -
Buitenplaats Provincie Utrecht
categorie:Transformaties, Particulier, Interieurm2:950opdrachtgever:ParticulierTeam:Van Rossum, Nijeboer - Hage, Remy Meijersprogramma:woonhuis, kantoorperiode:2016 - 2020 -
Recreatiewoning
locatie:provincie Utrechtcategorie:Particulierm2:40opdrachtgever:ParticulierTeam:Roel van Norelperiode:2012 - 2014 -
Spoorhuis
locatie:Santpoortcategorie:Transformaties, Particulier, Interieurm2:100opdrachtgever:ParticulierTeam:STUDIO JEROEN VAN ZWETSELAARperiode:2009 - 2012 -
Woonboerderij
locatie:provincie Utrechtcategorie:Transformaties, Particulier, Interieurm2:950opdrachtgever:ParticulierTeam:STUDIO JEROEN VAN ZWETSELAAR, Van Rhenen, BOOMprogramma:woonhuis, kantoor, atelierperiode:2013 - 2016 -
Woonkapel
locatie:Utrechtcategorie:Transformaties, Particulier, Interieurm2:250opdrachtgever:ParticulierTeam:Thesis Bouw Nieuwegeinprogramma:woonhuisperiode:2006 - 2007 -
Baksteenhuis
locatie:Groenekancategorie:Particulieropdrachtgever:ParticulierTeam:Van Rhenenprogramma:Vrijstaande woningperiode:2010 - 2013 -
Landschapsvilla
locatie:Vriezenveencategorie:Particulieropdrachtgever:ParticulierTeam:Westerhofprogramma:Woonhuisperiode:2005 - 2006 -
Duurzaam Monument
locatie:Driebergencategorie:Transformaties, Particulieropdrachtgever:Particulier / Stichting Duurzaam Renoveren van Historische Gebouwenprogramma:woonhuisperiode:2009 - 2010 -
Woonwatertoren
locatie:Soestcategorie:Transformaties, Particulier, Interieurm2:280opdrachtgever:ParticulierTeam:Plegt-Vos. Middelkoopprogramma:woonhuisperiode:2002 - 2004 -
Zwarte parel
locatie:Rotterdamcategorie:Transformaties, Particulieropdrachtgever:ParticulierTeam:Studio Rolf.frprogramma:woning en atelierperiode:2008 - 2012 -
Bosvilla
locatie:Soestcategorie:Particulierm2:450opdrachtgever:ParticulierTeam:Van Rhenenprogramma:Villaperiode:2007 - 2009
Meer Interieur
-
Tijdelijke Huisvesting Tweede Kamer
locatie:Den Haagcategorie:Transformaties, Interieur, Utiliteitm2:80.000opdrachtgever:RijksvastgoedbedrijfTeam:Strukton Worksphereprogramma:publieke entree, plenaire zaal, commissiezalen, kantoren, restaurants en horecaperiode:2017 - 2021 -
Stadsbad Heerlen
locatie:Heerlencategorie:Transformaties, Utiliteit, Interieurm2:1.270opdrachtgever:Gemeente HeerlenTeam:MVRDV, IMd, Nelissen, SkaaLprogramma:Openbaar zwembadperiode:2025 - heden -
Watertoren Utrecht
locatie:Utrechtcategorie:Transformaties, Particulier, Interieurm2:920opdrachtgever:ParticulierTeam:R&R Bouw, Neveschips, IMd, FMax-Isaac, DGMRprogramma:exclusief woonhuis, 3 appartementen, commerciële ruimteperiode:2012 - 2022 -
Nobelkwartier De Bilt
locatie:De Biltcategorie:Woningbouw, Interieur, Utiliteitm2:6.400opdrachtgever:Gemeente De Bilt / H.F. Witte Centrum / WoongroenTeam:IBT, DWA, M3E, Anyverse, Odin Wenting bouwadviesprogramma:sporthal, bijeenkomstcentrum met horeca, 10 appartementen, 8 ggbperiode:2019 - heden -
Gemeentehuis Renswoude
locatie:Renswoudecategorie:Transformaties, Interieur, Utiliteitm2:1.060opdrachtgever:Gemeente RenswoudeTeam:Van Vliet Bouwmanagement, M3E, IBT, Gemeente Renswoude, Bouwbedrijf Osnabrugge, IRP Bouwadviesprogramma:Raadhuis, kantorenperiode:2020 - 2023 -
Cobercofabriek Arnhem
locatie:Arnhemcategorie:Transformaties, Interieur, Utiliteit, Gebiedsontwikkelingm2:16.000opdrachtgever:BPD OntwikkelingTeam:Delva landscape, Orange architects, Studiospaciousprogramma:66 appartementen, 30 ggbperiode:2022 - heden -
Onderdelenloods
locatie:Utrechtcategorie:Transformaties, Utiliteit, Interieurm2:1.800opdrachtgever:Zecc Vastgoed BVTeam:R&R Bouwprogramma:5 kantoorstudio'speriode:2021 - 2024 -
Stolpboerderij Bergen
locatie:Bergencategorie:Transformaties, Particulier, Interieuropdrachtgever:ParticulierTeam:BOOM landscapeprogramma:Hedendaags familiehuisperiode:2022 - heden -
Interieur Bibliotheek Neude
locatie:Utrechtcategorie:Transformaties, Utiliteit, Interieurm2:9.000opdrachtgever:De Bibliotheek UtrechtTeam:Rijnboutt, Jurriens B.V. maar! bouwmanagement, Coors, Keijsers, Gispenprogramma:bibliotheek, kantoren, horeca, vergaderzalen, auditoriumperiode:2015 - 2020 -
Woonkerk XL
locatie:Utrechtcategorie:Transformaties, Particulier, Interieurm2:475opdrachtgever:ParticulierTeam:Rietveld interieurbouwprogramma:Transformatie kerk tot ruimtelijk woonhuisperiode:2007-2009 -
GAK middendeel
locatie:Amsterdamcategorie:Transformaties, Interieur, Utiliteitm2:10.000opdrachtgever:SteenvastgoedTeam:WDJArchitecten, ABT, DPA, Huygenprogramma:120 hotelkamers, loungeperiode:2015 - 2020 -
Buitenplaats Provincie Utrecht
categorie:Transformaties, Particulier, Interieurm2:950opdrachtgever:ParticulierTeam:Van Rossum, Nijeboer - Hage, Remy Meijersprogramma:woonhuis, kantoorperiode:2016 - 2020 -
Spoorhuis
locatie:Santpoortcategorie:Transformaties, Particulier, Interieurm2:100opdrachtgever:ParticulierTeam:STUDIO JEROEN VAN ZWETSELAARperiode:2009 - 2012 -
Woonboerderij
locatie:provincie Utrechtcategorie:Transformaties, Particulier, Interieurm2:950opdrachtgever:ParticulierTeam:STUDIO JEROEN VAN ZWETSELAAR, Van Rhenen, BOOMprogramma:woonhuis, kantoor, atelierperiode:2013 - 2016 -
Woonkapel
locatie:Utrechtcategorie:Transformaties, Particulier, Interieurm2:250opdrachtgever:ParticulierTeam:Thesis Bouw Nieuwegeinprogramma:woonhuisperiode:2006 - 2007 -
Drents Archief 3.0
locatie:Assencategorie:Transformaties, Interieur, Utiliteitm2:3.300opdrachtgever:Rijksvastgoedbedrijf en Drents ArchiefTeam:Brands Bouwgroep B.V.programma:Openbaar archiefperiode:2010 - 2012 -
Huisvesting KRO-NCRV
locatie:Hilversumcategorie:Interieurm2:6.000opdrachtgever:KRO-NCRVTeam:CBREprogramma:kantoren, vergaderruimtenperiode:2014 - 2015 -
Uitkijktoren Sint Jansklooster
locatie:Sint Janskloostercategorie:Transformaties, Interieur, Utiliteitopdrachtgever:BOEi / Vitens en Natuurmonumentenprogramma:Uitkijktorenperiode:2007 - 2014 -
Vereniging Eigen Huis
locatie:Amersfoortcategorie:Interieurm2:5.500opdrachtgever:Vereniging Eigen HuisTeam:Bouwbedrijf Heldoornprogramma:kantorenperiode:2014 - 2016 -
Woonwatertoren
locatie:Soestcategorie:Transformaties, Particulier, Interieurm2:280opdrachtgever:ParticulierTeam:Plegt-Vos. Middelkoopprogramma:woonhuisperiode:2002 - 2004 -
Heldergroen
locatie:Haarlemcategorie:Interieurm2:150programma:kantoorhuisvestingperiode:2009